Mulino granulatore a martelli "Reiter" tipo RDS - RDP - RDM.
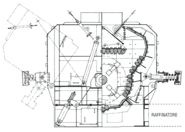
E' una macchina di concezione moderna, di facile manutenzione, che puo' soddisfare tutte le esigenze di frantumazione secondaria e terziaria nelle cave di media e grande produzione. I martelli hanno due parti di usura, una al lato esterno e una al lato interno del rotore. Quando la parte esterna e' con- sumata il martello puo' essere girato, onde utilizzare la parte interna. Il vantaggio che ne deriva e' il minimo scarto del martello. I martelli sono fissati al rotore con attac- chi a incastro, senza l'utilizzo di portamartello. |
![]() |
![]() |
Per garantire la massima uniformita' del prodotto, indipendentemente dallo stato di usura dei martelli, e' possibile invertire il senso di rotazione del rotore affinche' il martello presenti sempre uno spigolo vivo sul lato macinante. Inoltre, le pareti mobili sono registrabili idraulicamente in modo da mantenere uno spazio costante fra martello e corazzatura. Tutte le operazioni di manutenzione sono accelerate e semplificate in quanto la macchina puo' essere completamente aperta idraulicamente. |
La macchina e' protetta dall'eventuale ingresso di corpi non frantumabili, mediante un sistema di sicurezza. Qualora si richieda un'elevata percentuale di prodotto fine, alla macchina puo' essere aggiunto un raffinatore che consiste in un prolungamento della camera di frantumazione, dotato di valve indi- pendenti dalle principali, anch'esse registrabili idraulicamente. Martelli e corazzature sono in acciaio antiusura. |
![]() |
Dimensioni
Tipo | A | B | C | D | E | F | G | H | I |
RDP | 2500 | - | 2900 | 4900 | 4250 | 3000 | 1770 | 750 | 1020 |
RDS | 3000 | - | 3500 | 6300 | 4950 | 3500 | 2160 | 910 | 1250 |
RDP-N | 2680 | - | 3080 | 4600 | 4250 | 3000 | 1770 | 750 | 1020 |
RDS-N | 3230 | - | 3730 | 6400 | 4950 | 3500 | 2160 | 910 | 1250 |
RDP + raff. | 3120 | 620 | 3520 | 4900 | 4250 | 3000 | 1910 | 890 | 1020 |
RDS + raff. | 3700 | 700 | 4200 | 6300 | 4950 | 3500 | 2300 | 1050 | 1250 |
RDP-N + raff. | 3300 | 620 | 3700 | 4600 | 4250 | 3000 | 1910 | 890 | 1020 |
RDS-N + raff. | 3930 | 700 | 4430 | 6400 | 4950 | 3500 | 2300 | 1050 | 1250 |
Dati tecnici
Tipo | RDS | RDP | RDS/N | RDP/N |
Dimensioni alimentazione mm ( Calcare ) |
10 - 300 | 10 - 200 | 10 - 300 | 10 - 200 |
Dimensioni
alimentazione mm ( Altri ) |
15 - 150 | 15 - 150 | 15 - 150 | 15 - 150 |
Produzione t / h | 130 - 275 | 90 - 160 | 130 - 275 | 90 - 160 |
Peso Kg | 24000 | 17000 | 22000 | 15500 |
Potenza assorbita Kw | 160 - 250 | 75 - 160 | 160 - 250 | 75 - 160 |
Altezza totale mm | 3000 | 2500 | 3000 | 2500 |
Lunghezza totale mm | 4800 | 4200 | 4800 | 4200 |
Larghezza totale mm | 2300 | 1800 | 2300 | 1800 |
Lunghezza totale a macchina aperta mm |
6400 | 5200 | 6400 | 5200 |
Ø Puleggia mm | 800 | 600 | 800 | 600 |
Numero giri al minuto | 400 - 600 | 500 - 700 | 400 - 600 | 500 - 700 |
![]() |
![]() |
![]() |
![]() |
Dimensioni
Tipo | A | B | C | D | E | F | G | H | I |
RDC | 2170 | - | 2370 | 3900 | 2650 | 1850 | 1050 | 440 | 610 |
RDM 65 | 2500 | 550 | 2670 | 4500 | 2850 | 2000 | 1370 | 590 | 780 |
RDM 130 | 2700 | 750 | 2900 | 5030 | 2850 | 2000 | 2110 | 950 | 1160 |
Dati tecnici
Tipo | RDC | RDC Veloce |
RDM 65 | RDM
65 Veloce |
RDM 130 | RDM
130 Veloce |
Dimensioni alimentazione mm | 10 - 80 | 4 - 40 | 10 - 100 | 4 - 40 | 10 - 100 | 4 - 40 |
Produzione t / h | 15 - 24 | 12 - 20 | 40 - 65 | 40 - 56 | 80 - 130 | 80 - 115 |
Peso Kg | 4000 | 4000 | 7800 | 7800 | 11000 | 11000 |
Potenza assorbita Kw | 18 - 40 | 45 - 65 | 45 - 85 | 65 - 125 | 100 - 160 | 110 - 230 |
Altezza totale mm | 2170 | 2170 | 2500 | 2500 | 2700 | 2700 |
Lunghezza totale mm | 2650 | 2650 | 2850 | 2850 | 2850 | 2850 |
Larghezza totale mm | 1050 | 1050 | 1370 | 1370 | 2110 | 2110 |
Lunghezza totale a macchina aperta mm |
3900 | 3900 | 4500 | 4500 | 5030 | 5030 |
Ø Puleggia mm | 600 | 600 | 800 | 800 | 555 | 555 |
Numero giri al minuto | 500 - 750 | 1000 - 1100 | 500 - 750 | 900 - 1000 | 500 - 750 | 700 - 1000 |
![]() |
![]() |
Le misure e i pesi indicati nel presente catalogo non sono impegnativi e possono essere variati senza preavviso.
Torna all'
indice del catalogo.
Via
Rovereto, 3 - 20059 Vimercate ( Milano ) - ITALY -
Tel: +39-039-668481 - Fax: +39-039-6852468
E-Mail info@reiter-crippa.it
This Web has been developed by Excalibur. Copyright (C) 2001 |